Extension et Rénovation Maison

Logement individuel – Centre-ville

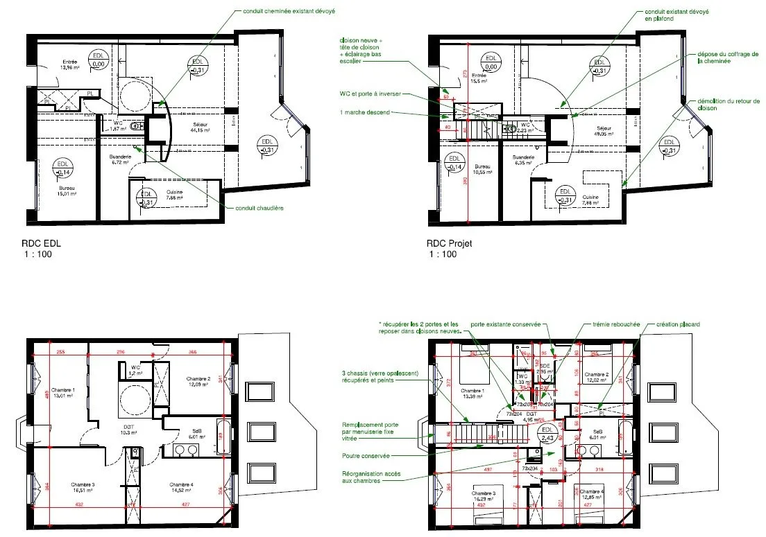
Cette maison toulousaine typique a subi plusieurs transformations au cours de son existence, lui conférant un escalier hélicoïdal, un gargantuesque tableau de cheminée ou encore une extension vers le jardin. L’objet du projet est de retrouver les qualités de l’espace qui s’est dégradé au fil des années. La position et la forme de l’escalier ont été repensées afin de retrouver un confort d’usage à caractère plus familial. Les circulations de l’étage ont été entièrement revues tout en maintenant la majeure partie des espaces en place.

  • LocalisationToulouse (31)
  • Maître d'ouvragePrivé
  • Surface120m²
  • StatutEn cours
  • Date2024
  • CatégorieLogement, Centre-ville, Extension, Réhabilitation/Rénovation