Rénovation Maison Familiale

Logement individuel – Zone rurale

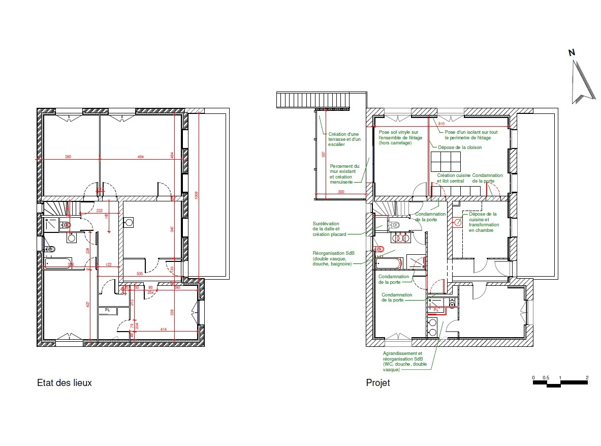
Le projet propose de transformer une maison existante datée des années 50 pour s’adapter aux usages de nouveaux occupants. La création de fenêtre et d’un balcon sur les coteaux agricoles a ouvert le nouveau séjour à la lumière naturelle, tandis que l’intégralité de la maison a été isolée et restaurer dans un objectif de sobriété et de confort été comme hiver.

  • LocalisationGauré (31)
  • Maître d'ouvragePrivé
  • Surface116 m²
  • CatégorieLogement, Réhabilitation/Rénovation